Morssingel 306
2312 AZ Leiden

  • Vraagprijs
    € 850.000 v.o.n.
  • Type woning
    Vrijstaande woning
  • Oppervlakte
    69m²
  • Aantal kamers
    3

Omschrijving

Woonark aan de Morssingel in Leiden

Op een unieke plek gelegen woonark, met permanente woonbestemming. 

Op een steenworp afstand van de Morspoort, een van de oudste toegangspoorten van Leiden, onderdeel uitmakende van de stadswal, en vlakbij de geboorteplek van Rembrandt van Rijn is de woonark gelegen op deze historische plek. 

Werkelijk een oase om te kunnen wonen tegenover het Museum van Volkenkunde met een prachtige wandelroute die loopt door de historische binnenstad met al haar prachtige plekken. 

De woonark is modern van opzet en spliksplinternieuw opgeleverd dit najaar. Kortom een prachtplek. 

De boot is onderhoudsarm vervaardigd waarbij de uitstraling is gekozen voor houttinten welke opgaan in de omgeving. 

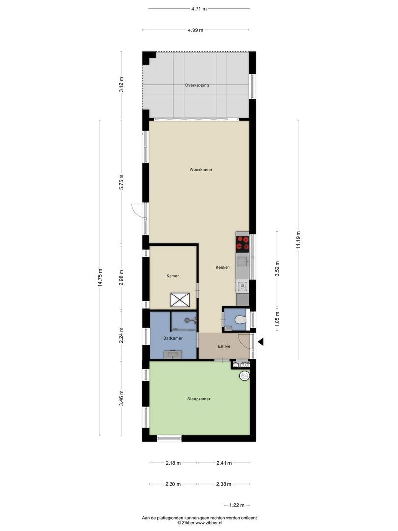
Indeling

Entree, hal, meterkast, ruim toilet met fonteintje, toegang tot grote slaapkamer met mooie lichtval door grote, hoge ramen gemaakt van triple geisoleerd glas. De slaapkamer is uitgerust met een Airconditioning welke tevens als verwarming kan fungeren. 

Naast de slaapkamer is een ruime badkamer, uitgevoerd met een wastafel, grote inloopdouche, handdoekenradiator en tevens opstelling van een wasmachine en droogcombinatie. 

Vanuit de gangzone bereikt u de tweede wat kleinere slaapkamer, welke tevens met airco is uitgerust. 

De ruime woonkamer en open keuken geven een heerlijke woonbeleving. De keuken is volledig uitgevoerd met ATAG apparatuur, waaronder een inductiekookplaat met verticale afzuiging, een vaatwasser, een koelkast met grote vriezer, twee heteluchtovens. Het werkblad is uitgevoerd in een marmerlook en heeft een moderne spoelbak met mengkraan.

De woonkamer heeft een invouwbare pui, welke de boot nagenoeg geheel open maakt richting het ruime terras. Hier kijkt u vanuit uw loungeset naar de Morspoort en langsvarende sloepjes. 

De woonark is volledig onderkelderd (14 x 4 meter, hoogte 1.20 meter).

Een heerlijke plek, met alle voordelen van wonen op een schip. 

Kadaster

Perceel in eigendom van de gemeente Leiden.

Periodieke lasten

Havengeld: EUR 1.057 per jaar

Precariorechten (meerpalen, loopplank, aansluitingen aan de wal): Circa EUR 400 per jaar

Waterschapslasten: Afhankelijk van het aantal personen vanaf EUR 650 per jaar

Afvalstoffenheffing: Afhankelijk van het aantal personen

Energie: alleen elektra

Water: Dunea

Bijzonderheden

Boot is nieuw: bouwjaar 2025

Moderne materialen, onderhoudsarm

Alle buitenkozijnen en deuren uitgevoerd in aluminium draaikiep of schuifwand

HR+++ en zonwerend glas

Isolatiewaarde superieur

Compleet gestoffeerd

Mogelijkheid tot aanleggen 1 of 2 sloepen

Kelderruimte onder de gehele begane grond vloer, toegankelijk middels drie uitneembare luiken (14 x 4 meter, hoogte 1,20 meter)

Alle ruimte voorzien van bekabeling voor internetaansluitingen 

Kenmerken

Prijs
€ 850.000 v.o.n.
Status
Beschikbaar
Soort woonhuis
Woonboot, Vrijstaande woning
Bouwjaar
2025
Onderhoud binnen
Uitstekend
Onderhoud buiten
Uitstekend
Oppervlakte
69m²
Inhoud
229m³
Kamers
3
Slaapkamers
2
Badkamers
1
Verdiepingen
1
Ligging
Aan het water, In centrum, Vrij uitzicht, Nabij winkels

Locatie

[ { "address": "Morssingel 306", "zipCode": "2312 AZ", "city": "Leiden", "lat": 52.162280352936, "lng": 4.4815213253784, "heading": 55.168327989772, "pitch": -10.720823833761 } ]

Plattegronden

Interesse in deze woning?

Bel of mail ons voor meer informatie of een bezichtigingsafspraak.


Uw bericht is naar ons verzonden. Wij nemen zo snel mogelijk contact met u op.

Sorry, we kunnen helaas niet met zekerheid vaststellen of je een mens of een geautomatiseerde bot/spammer bent. Hierdoor kunnen we het formulier dat je hebt ingevuld niet verzenden. Probeer het opnieuw of neem direct contact op met de makelaar via e-mail.

Er is iets mis gegaan met het versturen van het formulier.
Controleer of u alle velden (goed) heeft ingevoerd en probeer het nog een keer.

recaptcha
reCAPTCHA
PrivacyTerms